ランスタ分譲住宅~Concept House~【売主】各棟コンセプトが光る個性溢れる新築永住邸堂々誕生!~朝霞市朝志ケ丘4丁目新築分譲住宅~

| 販売価格(税込) | ①号棟:5,380万円、②号棟:5,580万円、③号棟:4,990万円 |
|---|---|
| 所在地 | 朝霞市朝志ケ丘4丁目付近 |
| 交通 | 東武東上線「志木」駅歩15分 東武東上線「朝霞台」駅歩19分 JR武蔵野線「北朝霞」駅歩17分 |
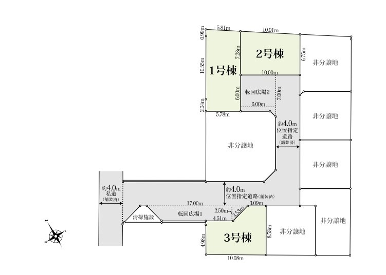
| 建物面積 | ①号棟:109.07m2、②号棟:114.67m2、③号棟:115.92m2 |
| 土地面積 | ①号棟:77.79m2、②号棟:70.23m2、③号棟:72.09m2 |
| 間取り | ①号棟:3LDK+S+パントリー、②号棟:4LDK+WIC+FC+パントリー、③号棟:2(3)LDK+S+2WIC+パントリー |
Information
【売主物件】3駅2路線利用可能な好立地で通勤・通学に大変便利!女性目線で日々の生活を考慮した設計が特徴!各棟コンセプトが光る個性溢れる新築分譲住宅です!
物件特徴
《オススメPOINT》
【Concept House】
各棟それぞれのコンセプトが光る♪個性溢れる新築永住邸!
(1)バイクガレージのある家♪
(2)ファミリクローゼットのある家♪
(3)玄関吹抜けのある家♪
■家族の集まるLDKは広々18帖超え!
■ファミリクローゼット、大型クローゼットもあり、収納箇所には困りません!
■主婦(夫)の大きな見方!食洗機完備♪
■電動シャッター付ガレージ(1号棟)やビルトインガレージ(2・3号棟)等、雨の日でも愛車を守れます!
■家族とのコミュニケーションが自然と増える人気のリビングin階段採用!
■リモートワークやスタディコーナーとしても使えるカウンター付!
是非一度、お気軽にお問い合わせください!
区画・販売物件
物件写真
周辺環境・アクセス
※地図上に表示される物件の位置は付近住所に所在することを表すものであり、実際の物件所在地とは異なる場合がございます。
※地図の更新タイミングの関係で、物件情報が実際のものとは異なる場合や最新情報に更新されていない場合がございます。
※地図の更新タイミングの関係で、物件情報が実際のものとは異なる場合や最新情報に更新されていない場合がございます。
ライフインフォメーション
| 小学校 | 朝霞市立朝霞第七小学校:徒歩9分(700m) |
|---|---|
| 中学校 | 朝霞市立朝霞第二第二中学校:徒歩20分(1600m) |
| 保育園・幼稚園 | 朝霞市立北原保育園:徒歩6分(480m) 朝霞市立北朝霞保育園:徒歩13分(900m) |
| コンビニ | センイレブン志木大原店:徒歩6分(460m) ファミリーマート朝霞宮戸店:徒歩4分(320m) |
| スーパー | アコレ宮戸店:徒歩6分(480m) コモディイイダ北朝霞店:徒歩8分(640m) |
| ドラッグストア | ドラッグエース朝志ケ丘店:徒歩8分(620m) |
| 商業施設 | マルイファミリー志木店:徒歩17分(1360m) |
物件概要
| 所在地 | 朝霞市朝志ケ丘4丁目付近 |
|---|---|
| 交通 | 東武東上線「志木」駅歩15分 東武東上線「朝霞台」駅歩19分 JR武蔵野線「北朝霞」駅歩17分 |
| 販売戸数 / 総戸数 | 3/10 |
| 建物構造 | 木造コロニアル葺3階建て |
| 完成 | 令和8年4月末頃 |
| 建ぺい率・容積率 | 60%・200(160)% |
| 土地の権利 | 所有権 |
| 用途地域 | 第一種中高層住居専用地域 |
| 地目 | 宅地 |
| 建築確認番号 | 第25UDI1S建03933号号他 |
| 取引態様 | 売主 |
| 販売価格(税込) | ①号棟:5,380万円、②号棟:5,580万円、③号棟:4,990万円 |
|---|---|
| 建物面積 | ①号棟:109.07m2、②号棟:114.67m2、③号棟:115.92m2 |
| 土地面積 | ①号棟:77.79m2、②号棟:70.23m2、③号棟:72.09m2 |
| 間取り | ①号棟:3LDK+S+パントリー、②号棟:4LDK+WIC+FC+パントリー、③号棟:2(3)LDK+S+2WIC+パントリー |
| 入居(引渡) | 相談 |
| 現況 | 建築中 |
| 高度地区 | 25m高度地区 |
| 防火指定 | * |
| 都市計画 | 市街化区域 |
| 接道 | 分譲地内約4.0m公私道(位置指定道路) |
| 設備 | 公営水道、本下水、都市ガス |
| 備考 | 景観法による規制有、高度地区、建築基準法第22条区域、都市再生特別措置法、宅地造成及び特定盛土等規制法、農地法 |
| 所在地 | 朝霞市朝志ケ丘4丁目付近 |
|---|---|
| 販売価格(税込) | ①号棟:5,380万円、②号棟:5,580万円、③号棟:4,990万円 |
| 交通 | 東武東上線「志木」駅歩15分 東武東上線「朝霞台」駅歩19分 JR武蔵野線「北朝霞」駅歩17分 |
| 建物面積 | ①号棟:109.07m2、②号棟:114.67m2、③号棟:115.92m2 |
| 土地面積 | ①号棟:77.79m2、②号棟:70.23m2、③号棟:72.09m2 |
| 販売戸数 / 総戸数 | 3/10 |
| 間取り | ①号棟:3LDK+S+パントリー、②号棟:4LDK+WIC+FC+パントリー、③号棟:2(3)LDK+S+2WIC+パントリー |
| 建物構造 | 木造コロニアル葺3階建て |
| 入居(引渡) | 相談 |
| 完成 | 令和8年4月末頃 |
| 現況 | 建築中 |
| 建ぺい率・容積率 | 60%・200(160)% |
| 高度地区 | 25m高度地区 |
| 土地の権利 | 所有権 |
| 防火指定 | * |
| 用途地域 | 第一種中高層住居専用地域 |
| 都市計画 | 市街化区域 |
| 地目 | 宅地 |
| 接道 | 分譲地内約4.0m公私道(位置指定道路) |
| 建築確認番号 | 第25UDI1S建03933号号他 |
| 設備 | 公営水道、本下水、都市ガス |
| 取引態様 | 売主 |
| 備考 | 景観法による規制有、高度地区、建築基準法第22条区域、都市再生特別措置法、宅地造成及び特定盛土等規制法、農地法 |
